27. Februar 2026; Von: Sonja Fahr

Rückblick: Startchancen Säule I im Gespräch - Zukunftsgerichtete Lernräume im Bestand

Wie kann eine an Aktivitäten orientierte Raumnutzung qualitative ganztägige Bildung im Bestand ermöglichen? Dieser Frage widmete sich das Expert*innengespräch mit Dipl.-Ing. Dorle Zweering im Rahmen der Reihe „Startchancen Säule I im Gespräch“.

Anhand des integrierten Nutzungskonzepts des Pilotprojekts Ganztag und Raum an der Grundschule an der Melanchthonstraße in Bremen zeigt die architektonische Prozessbegleitung Dorle Zweering (gernot : schulz architektur GmbH), wie eine lernförderliche Umgebung räumlich im Bestand umgesetzt werden kann. Die Grundlage bildet ein partizipativer integrierter Prozesses mit allen Akteur*innen von Anfang an, der Pädagogik und Raum zusammendenkt.

Ganzheitlicher Ansatz: Organisation, Pädagogik und Raum

Das Projekt „Ganztag und Raum“ verbindet die drei Säulen des Startchancen-Programms: Gemeinsam mit dem multiprofessionellen Team (Säule III) werden im Rahmen eines vorgeschalteten pädagogischen Entwicklungsprozesses (Säule II) die räumlichen Bedarfe (Säule I) ermittelt.

Weitere Informationen:

Prozessgestaltung: Von der Pädagogik zur Raumplanung

Zunächst werden pädagogische und organisatorische Grundlagen mit allen Prozessbeteiligten aus Schule, Hort und Verwaltung erarbeitet: Auf der Basis von einem gemeinsames Bildungsverständnis, multiprofessionelle Kooperation und kindgerechter Rhythmisierung des Ganztags werden konkrete Aktivitäten beschrieben. Daraus werden die Anforderungen an den Raum abgeleitet. Ebenso erkunden die Kinder in Workshops ihr Schulgebäude und formulieren Potenziale und Bedarfe. Begleitet wurde dieser einjährige Gesamtprozess durch uns und eine externen Prozessbegleitung aus Pädagogik und Raum (Andrea Rokuß (confidio) und Dorle Zweering (gernot : schulz architektur GmbH)).

Gemeinsame Raumnutzung: Schule als ganzheitlicher Lern- und Lebensraum

Aus den bisher getrennten Angeboten von Schule und Hort entwickelt sich dabei ein gemeinsames integriertes pädagogisches und räumliches Nutzungskonzept für den ganzen Tag. Die Neustrukturierung des Grundrisses bildet die Grundlage für eine veränderte Organisation: Aktivitäten werden neu verteilt, das Hortgebäude einbezogen und der Außenraum und das Quartier mitgedacht. Ziel ist es, die Schule und ihr Umfeld als ganzheitlichen Lern- und Lebensraum zu stärken – ganz im Sinne des Startchancenprogramms.

Potenziale im Bestand nutzen: Von der Raum- zur Flächennutzung

Der Grundriss wird hierzu unabhängig von der bisherigen Raumaufteilung hinsichtlich der Optionen im Bestand analysiert. Die Räume werden Aktivitäten und nicht ausschließlich Klassen und Fächern zugeordnet. So können Flächen effizienter über den ganzen Tag hinweg gemeinsam genutzt werden. Bislang nicht-pädagogisch genutzte Bereiche, insbesondere Erschließungsflächen, können durch ein angepasstes Brandschutzkonzept in die pädagogischen Flächen integriert werden.

Der Grundriss wird anhand der Aktivitäten neu strukturiert: Ruhige und kommunikative Bereiche, verschiedene Lernsettings sowie Zonen für konzentriertes Arbeiten oder Bewegung werden verortet. Den Räumen werden gezielt Atmosphären wie „hell“, „freundlich“, „anregend“, „einladend“, „wohnlich“, „festlich“, und „funktional“ zugeordnet. Referenzen verdeutlichen die Raumqualitäten im Konzept und fließen ebenso wie die Erfahrungen aus der gemeinsamen Lernreise, in das gemeinsame Leitbild ein.

Vom Lernort zum Lern- & Lebensort, von Schule und Hort zum Bremer Heimathafen, © gernot schulz : architektur

Lerngemeinschaft: Von der Klassenraum-Flur-Schule zum „Bremer Heimathafen“

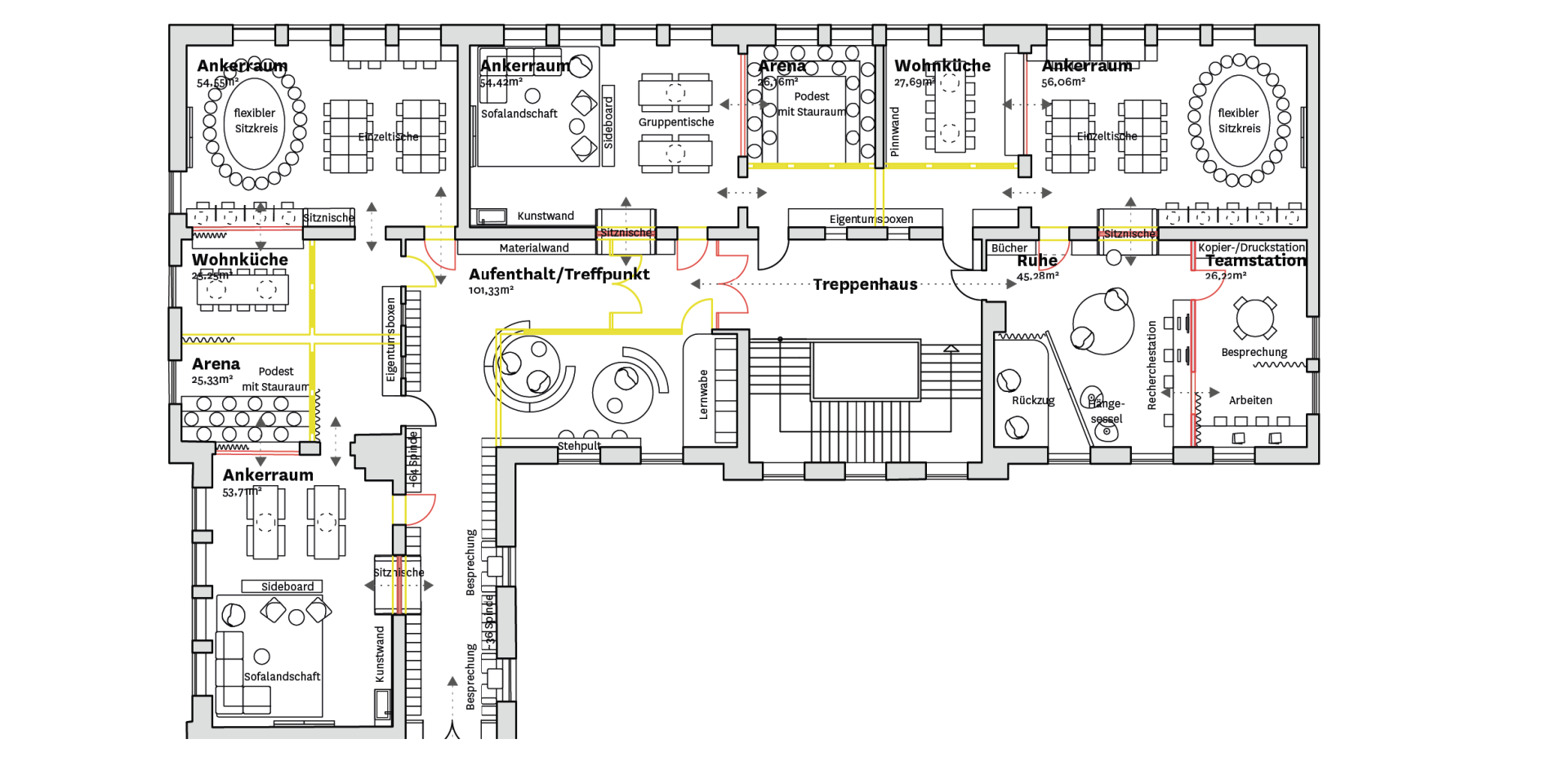
Aus der ehemaligen Klassenraum-Flur-Schule der 1950er-Jahre mit separatem Hortgebäude entsteht so das Konzept des „Bremer Heimathafens“. Durch das integrierte Nutzungskonzept gelingt es, die bestehenden räumlichen Strukturen zukunftsweisend zu verändern: Feste Klassen- und monofunktionale Fachraumstrukturen werden aufgelöst und durch aktivitätsorientierte Bereiche ersetzt – für konzentrierte Einzelarbeit, Gruppenarbeit, Inputphasen, Begegnung, Rückzug oder Bewegung. Jeweils zwei benachbarte Lerngruppen mit eigenen Ankerräumen teilen sich eine kommunikative „Wohnküche“ und eine „Arena“ für Input und Präsentation. Zusammen mit zwei weiteren Lerngruppen bilden sie einen Heimathafen pro Geschoss, dem darüber hinaus ein Ruhebereich, ein Teamraum und die gemeinsame Mitte zugeordnet sind. Über das Gebäude verteilt gibt es zudem buchbare Büros, kleinere Gruppenräume und verschiedene Bewegungs-, Werkstatträume sowie eine Bibliothek im Souterrain. Die Verwaltung zieht in das ehemalige Hortgebäude, in dessen Erdgeschoss sich die Küche mit angrenzendem multifunktionalem Bistro- und Cafébereich befindet.

Verbindungen bauen: Neue Sichtbeziehungen und eine veränderte Möblierung

Ein angepasstes Brandschutzkonzept (siehe auch „Brandschutz im Schulbau – Neue Konzepte und Empfehlungen“) und der Einbau von Sichtverbindungen durch Wandöffnungen, Glastüren und Fensternischen ermöglichen ein neues Raumgefüge und unterstützen das gemeinsame Lernen. Ehemalige Flure werden zum verbindenden Mittelpunkt der angrenzenden Lerngruppen und bieten zudem Platz für Garderoben und beiläufige Bewegungsangebote.

Veränderte Flächennutzung durch geringfügige bauliche Maßnahmen (gelb: Abbruch, rot: Neubau), © gernot schulz : architektur

Eine veränderte Möblierung unterstützt die Aktivitäten, Rückzugsmöglichkeiten und vielfältigen Lernsettings und erzeugt zusammen mit einem übergreifenden Farb- und Materialkonzept Atmosphäre und Identität der Lernumgebungen.

Raumbereiche und Lernsettings für verschiedene Aktivitäten, © gernot schulz : architektur

Fazit: Agilität und Resilienz für die Zukunft

Die neue Gebäudenutzung spiegelt Agilität und Resilienz auch für zukünftige pädagogische Anforderungen wider. Das Pilotprojekt zeigt, wie solche Veränderungen mit geringen baulichen Maßnahmen innerhalb des Bestands möglich sind. Die Bedarfsermittlung, die Planung und die baulichen Maßnahmen können in vergleichbarer Weise über das Startchancen-Programm im Sinne einer förderlichen Lernumgebung gefördert werden.

Ganztag und Raum

Der gesamte Prozess und das integrierte Nutzungskonzept zum Pilotprojekt Bremen und den weiteren vier „Ganztag und Raum“-Standorten Ulm, Jork, Lüdenscheid und Mülheim an der Ruhr sind hier umfangreich dokumentiert.

Veranstaltungshinweis: "Startchancen Säule I im Gespräch"

Alle Informationen zur Veranstaltungsreihe gibt es hier. Kommende Themen:

  • 20. März 2026 „Veränderte Möblierung für eine lernförderliche Umgebung“ mit Dipl.-Ing. Hanne Banduch & Dipl.-Ing. Karolin Kaiser

  • 23. April 2026 „Veränderte Brandschutzkonzepte in Bestandsgebäuden“ mit Prof. Dr.-Ing. Dirk Lorenz